|
Characteristics and applications
ZL (LZ) pin gear coupling : it can compensate the relative offset, damping function and the transmission accuracy is low, the transmission torque is large, compared with the gear coupling has the advantages of simple structure, light weight, convenient manufacture, convenient maintenance, no lubrication, instead of gear coupling, noise and application in large, torque transmission shaft, not suitable for high damping effect to noise and to strictly control the position. Related products
ZL - basic type;
ZID - Conical pass (connected with motor);
ZLZ - intermediate shaft type;
ZLL - with belt brake wheel type;
![]()
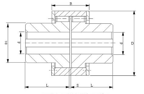
ZL (LZ) pin gear coupling Basic Parameters And Main Dimensions:(GB/T 5015-85) mm
![]() |






