|
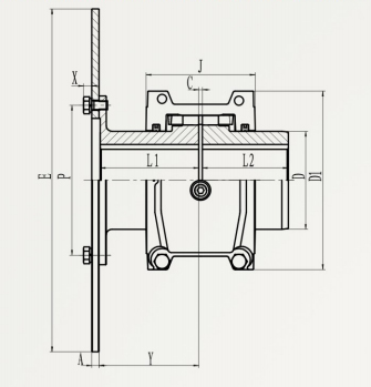
Characteristics and applications The Falk Steelflex T63 Grid Coupling or brake assemblies are not approved as a primary brake for applications used to lift or transprot people such as elevators, escalators, hoists, lifts, etc. Falk T63 Steelflex Grid Couplings Basic Parameters And Main Dimensions ![]() ![]() |






