|
Characteristics and applications
JSD grid coupling: compared with metal elastic element flexible coupling, it has the characteristics of high mechanical strength, large load capacity, light weight, small size, high transmission efficiency and transmission accuracy, good reliability, convenient assembly and disassembly. It is suitable for middle, high speed and large torque shafting transmission. Compared with drum gear coupling, it has the advantages of no relative sliding, no lubrication, long service life, no noise and simple structure. It can partly replace drum gear coupling. It is not affected by temperature and oil. It has the characteristics of acid, alkali and anticorrosion. Can be used for high temperature, low temperature and oil, water and corrosive medium conditions. The drive shaft is suitable for all kinds of mechanical device loads a little change, strong universality, has been widely used in industrial developed countries, is a high performance flexible application of our focus on coupling unrelenting, high precision diaphragm coupling can be used for high speed working conditions. Compared with the toothed coupling, the diaphragm coupling has no relative sliding, no lubrication and seal, no noise, no need to repair, and it is easy to manufacture. It can partly replace the toothed coupling. Diaphragm couplings have been widely applied in the developed countries. In practice, the intermediate shaft type is usually adopted to improve the two axis offset compensation performance.
![]()
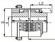
JSD grid coupling Basic Parameters And Main Dimensions:(JB/T 8869-2000)mm
![]() |






